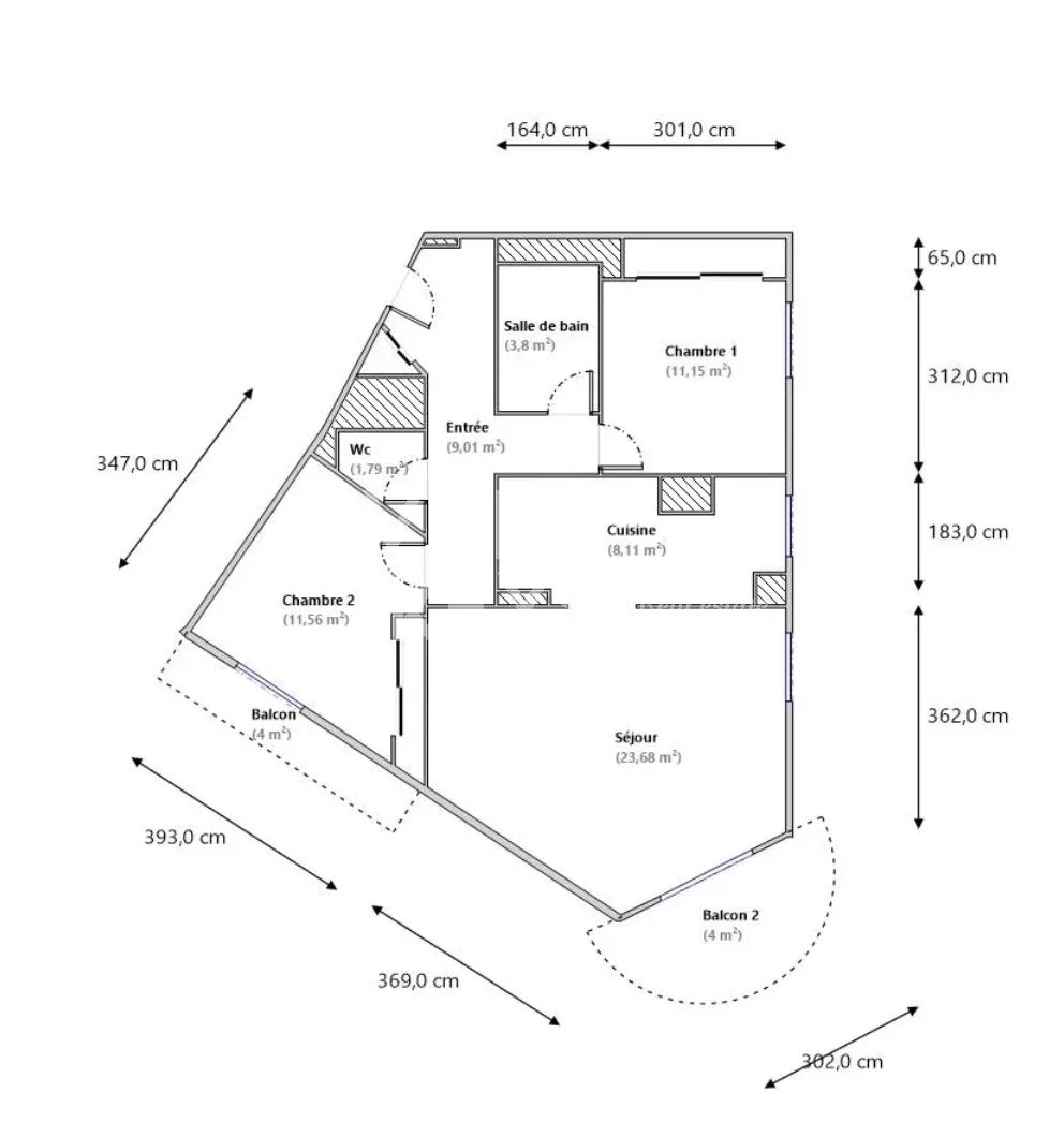
Ljus lägenhet i gott skick med högt i tak, på cirka 70 m² med två sovrum, på näst översta våningen med hiss i en välskött fastighet i området Chambrun i norra Nice. Nära affärer, spårvagn, skolor och centrum. Hall, ett vardagsrum som vetter mot en balkong med fri utsikt, kök i öppen planlösning, två sovrum, ett badrum, garderober, en separat toalett och ytterligare en balkong. Möjlighet att köpa garage i tillägg.
Vill du ha mer information?

+33 6 24 36 85 75
eva@rivierakeys.com
Från Nice med omnejd, till Menton. Talar norska, franska och engelska.
Denna sida är skyddad av reCAPTCHA och Google:s Integritetspolicy och Användarvillkor gäller.