Denne vakre villaen på 207 m² ligger i et grønt og fredelig område. Her får du romslige oppholdsarealer, en smart planløsning og materialer av høy kvalitet.
Villaen, som er i svært god stand og hovedsakelig på ett plan, har en lys og luftig stue med peis. Det åpne og fullt utstyrte kjøkkenet skaper en innbydende atmosfære for hyggelige måltider.
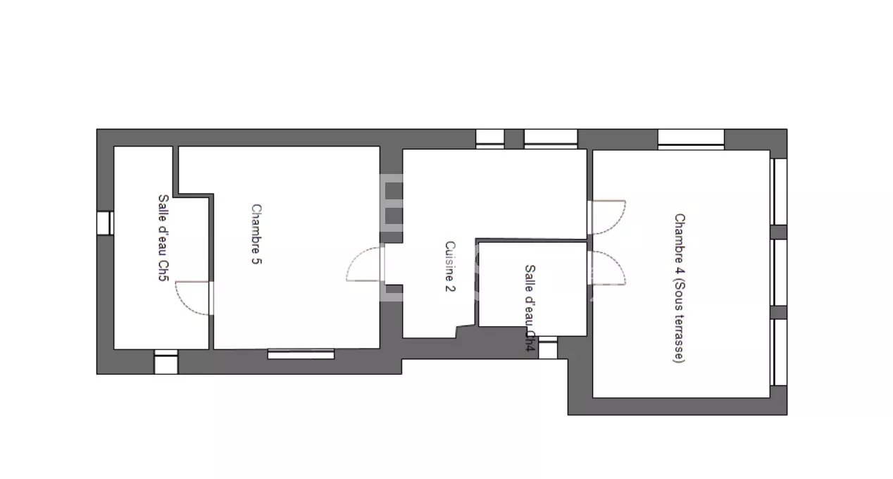
Hoveddelen av boligen har 3 soverom med egne bad, samt et kontor og et vaskerom. Under terrassen ligger en separat leilighet med to soverom med tilsvarende bad og kjøkkenkrok – perfekt for gjester.
Grønn oase på 1 720 m²
Den vakkert anlagte hagen med sørvestvendt beliggenhet byr på en idyllisk atmosfære. Her finner du et basseng med solrike terrasser, et velutstyrt bassenghus og skyggefulle soner for avslapning. Fra eiendommen har du fri utsikt over de omkringliggende åsene.
Kun 12 minutter fra Cannes har villaen rask tilgang til anerkjente internasjonale skoler, naturparken Valmasque og den sjarmerende landsbyen Mougins, som du kan nå på 30 minutter via skogsstier.
En sjelden mulighet til å skaffe seg en eksklusiv bolig med moderne komfort, fredelige omgivelser og nærhet til det beste på Rivieraen.
Ingen tilgjengelig informasjon
Ønsker du mer informasjon?

+33 6 24 36 85 75
eva@rivierakeys.com
Fra Nice og området rundt, til Menton. Snakker norsk, fransk og engelsk.
Dette nettstedet er beskyttet av reCAPTCHA og Googles Personvernregler og Bruksvilkår gjelder.